台中抓周場地租借|3 種場館選擇、彈性租借方案|台中抓周一站式服務
台中抓周場地推薦沃茲新創空間!提供 2-100 人彈性包場,勤美館、忠明館、站前館三種場館選擇。平日時租 $650 起,含投影、音響、桌椅設備。立即免費諮詢抓周方案!
台中抓周場地租借|在沃茲記錄寶寶成長的重要時刻
想為您的寶貝舉辦一場難忘的抓周派對嗎?
不論是溫馨的小家族、或是充滿活力和創意的親友見證,「沃茲新創空間 𝐖𝐨𝐫𝐝𝐬𝐋𝐢𝐯𝐞」多元的空間租借方案都能滿足您的需求。

台中抓周怎麼辦?完整流程與準備清單
不論是傳統抓周還是現代派對風格,一場完整的抓周活動通常包含以下幾個步驟。提前了解流程,能讓當天活動進行得更順暢:
步驟一:決定時間與規模
傳統習俗上,抓周通常在寶寶滿周歲當天舉行,但現代家庭也常選擇周歲前後的週末,方便親友出席。
建議提前 2-4 週開始規劃,確認參加人數後再選擇合適的場地大小。
步驟二:準備抓周道具
抓周道具是整場儀式的核心,以下整理常見的抓周道具與對應的寓意:
| 道具 | 寓意 | 道具 | 寓意 |
|---|---|---|---|
| 書本/筆 | 學識淵博 | 算盤/計算機 | 精於理財 |
| 印章 | 掌握權力 | 聽診器 | 從醫救人 |
| 尺 | 建築設計 | 麥克風 | 表演藝術 |
| 滑鼠 | 科技產業 | 球類 | 運動健將 |
| 金元寶/錢幣 | 富貴吉祥 | 食物(雞腿等) | 不愁吃穿 |
道具數量建議準備 12 樣,擺放成半圓形讓寶寶自由選擇,部分場地提供道具租借或準備的服務,預約前可先詢問。
步驟三:舉行抓周儀式
當天活動流程建議安排如下:
- 先進行簡單的祝福或祭拜儀式(依家庭習慣)
- 接著讓寶寶穿上周歲服或虎衣,在道具前自由抓取
- 通常會記錄寶寶抓取的前三樣物品,由主持人或家人解說寓意
步驟四:拍照記錄與慶祝
抓周過程是最珍貴的畫面,建議安排專業攝影或請親友協助錄影。
儀式結束後,可以安排簡單的餐敘或切蛋糕環節,讓所有賓客一起慶祝寶寶的第一個生日。
抓周場地租借要考量哪些要素?

舉辦抓周派對肯定讓父母忙得不可開交,而這邊為您列出選擇抓周場地時必須考量的要素,協助您做出最合適的選擇:
- 交通便利性: 要選擇大眾運輸方便到達或是附近方便停車的場地
- 容納人數: 空間太大或太小都會影響整個活動的體驗和氣氛
- 租借彈性:選擇具備彈性租借時數的場地,方便時程安排
- 場地設備: 桌椅是必備,而投影機、麥克風、WiFi更是抓周派對不可或缺的設備
- 客製化方案: 是否提供場地的布置和恢復、訂購餐食、錄影協助等
台中抓周推薦-沃茲提供哪些場地選擇?
沃茲新創空間在台中提供三種不同規模的抓周場地,從溫馨小家族到大型抓周派對都能完美容納。
以下依人數規模推薦:
2-10人推薦勤美館
沃茲勤美館緊鄰勤美誠品,步行可達SOGO百貨、勤美術館
溫馨的小空間,適合小家族共同慶祝寶寶的抓周儀式
- 地址:台中市北區英才路 396 號 11F-2
- 地標:緊鄰廣三 SOGO 百貨、勤美誠品綠園道
- 交通:英才西屯路口公車站步行 1 分鐘
- 停車:CITY PARKING(台灣大道站)步行 1 分鐘


11-30人推薦忠明館
沃茲忠明館位在台中市南區,臨近美術館、審計新村、半平厝公園
藝文環繞的氛圍下,搭配35坪的空間,可以讓抓周派對參與者自由地發揮創意,共創難忘的回憶
- 地址:台中市南區忠明南路 478 號 B1
- 地標:臨近國立台灣美術館、審計新村、半平厝公園
- 特色:藝文環繞的氛圍,約 35 坪開放式空間
30人以上推薦站前館
沃茲站前館擁有整面落地窗及挑高天花板,陽光自然灑入,營造明亮、通透的室內環境
非常適合想舉辦大型抓周派對,熱鬧慶祝這重要的每一刻
- 地址:台中市東區自由二街 91 號
- 地標:台中火車站步行 5 分鐘,鄰近一中商圈、秀泰廣場
- 停車:一中停車場步行 1 分鐘,精武廣場停車場步行 1 分鐘
- 特色:整面落地窗、挑高天花板,陽光自然灑入,空間 54 坪

為什麼抓周租借要選擇沃茲新創空間?

寶寶的週歲只有一次,沃茲新創空間協助您共同創造這美好的時刻,我們提供:
- 多樣的場地空間:任何人數都能輕鬆容納,不用擔心場地太擠或太空曠
- 彈性的租借方案:您想租多久就租多久,完全依照活動時程彈性選擇時數
- 交通方便:我們的各式場館位於大眾運輸旁,開車、騎車也非常方便
- 設備齊全:所有場地皆提供桌椅、投影機、麥克風、音響及網路
- 服務貼心:若您有場地布置或恢復、訂購外燴、錄影攝影等需求,都可以與我們討論客製方案
辦一場抓周大概花多少?台中抓周費用行情參考
第一次籌備抓周的爸媽最常問的問題之一,就是「預算要抓多少」。
以下整理了台中地區辦一場抓周的各項費用參考,幫助您更有效地規劃預算:
| 項目 | 費用範圍 | 說明 |
|---|---|---|
| 場地租借 | $1,300~$5,000 | 依場地大小與時段而異。沃茲平日時租 $650 起,租 2-3 小時即可完成 |
| 抓周道具 | $0~$2,000 | 自備免費;租借約 $500-2,000;部分場地含道具服務 |
| 攝影紀錄 | $3,000~$8,000 | 請親友拍攝可省下這筆;專業攝影約 $3,000-8,000/場 |
| 外燴/餐飲 | $0~$5,000+ | 依人數與餐點內容而定,也可自備簡單茶點 |
| 布置裝飾 | $0~$3,000 | 簡單氣球佈置約 $500-1,500;精緻主題佈置另議 |
| 總計參考 | $1,300~$20,000+ | 依規模而定,小型溫馨場約 $3,000-5,000 即可完成 |
想省預算?台中抓周免費方案參考
如果預算有限,以下是一些可以節省費用的方式:
- 免費場地選擇:部分餐廳提供免費包廂服務(需低消),或者選擇在自家或親友家中舉辦
- DIY 道具:抓周道具可以用家中現有物品替代,例如用真正的書本、計算機、湯匙等
- 親友攝影:請擅長拍照的親友協助,搭配手機腳架就能拍出好照片
- 自備茶點:準備簡單的蛋糕、水果和飲料,省下外燴費用
如果想要有更完整的活動體驗和專業設備支援,選擇專業的抓周場地租借仍然是最省心的方式。
沃茲新創空間平日時租 $650 起,2 小時就能完成一場溫馨的抓周儀式。
彈性租借方案與透明價格
我們提供彈性的抓周場地租借方案,不論是小型的抓周儀式,或是大型抓周派對,透過清晰透明的計價方式與方案組合,讓您輕鬆預約,無後顧之憂。
- 可按時、日、週為單位租借抓周場地,彈性安排活動時程
- 無隱藏費用,租金與設備使用費公開透明
- 長期租用享折扣,讓預算更靈活
勤美館

平日(一~五 18:00 前):NT$ 650/hr
假日(五 18:00 後~日):NT$ 800/hr
夜間加成(22:00~隔日 08:00 前):費用*1.5,下單後請洽 Line 客服
忠明館

平日(一~五 18:00 前):NT$ 1,000/hr
假日(五 18:00 後~日):NT$ 1,200/hr
夜間加成(22:00~隔日 08:00 前):費用*1.5,下單後請洽 Line 客服
站前館

平日(一~五 18:00 前):NT$ 1,100/hr
假日(五 18:00 後~日):NT$ 1,350/hr
站前場館可承租時間為 08:00-22:00
站前館靜態階梯

平日(一~五 18:00 前):NT$ 1,100/hr
假日(五 18:00 後~日):NT$ 1,350/hr
站前場館可承租時間為 08:00-22:00
台中抓周場地-沃茲勤美館介紹
沃茲勤美館緊鄰勤美誠品,抓周活動開始前可以在綠園道享受溫馨的家庭時光
在步行距離內有SOGO百貨、勤美術館等商圈,周邊餐廳、咖啡廳、購物選擇多樣,可以在派對結束後與三五好友聚餐敘舊
公車站
- 步行 1 分鐘可抵達公車站( 英才西屯路口 )
- 步行 1 分鐘可抵達公車站(英才台灣大道路口 )
- 步行 1 分鐘可抵達公車站( 中正國小 )
附近停車場資訊
- 步行 1 分鐘可抵達 CITY PARKING ( 台灣大道站 ) 台中市西區英才路399號
- 步行 5 分鐘可抵達 CITY PARKING ( 西屯站 ) 台中市西區西屯路一段230-7號
- 步行 8 分鐘可抵達 國立自然科學博物館第三停車場 台中市北區館前路1號

台中抓周場地-沃茲勤美館空間平面圖
- 桌子大小:6 – 8 人座次桌
- 空間長寬:14.5 坪
台中抓周場地-沃茲忠明館介紹
沃茲忠明館座落於台中市南區,臨近美術館、審計新村、半平厝公園,是台中藝文生活圈的心臟地帶
公車站
- 步行 2 分鐘可抵達公車站|臺中公園(雙十路)
- 步行 4 分鐘可抵達公車站|精武雙十路口
- 步行 5 分鐘可抵達公車站|臺灣體大游泳池
附近停車場資訊
- 步行 1 分鐘可抵達 一中停車場
- 步行 1 分鐘可抵達 精武廣場停車場
- 步行 6 分鐘可抵達 干城停車場
- 步行 6 分鐘可抵達 CITY PARKING 停車場 干城站

台中抓周場地-沃茲忠明館空間平面圖
- 空間長寬:35 坪
台中抓周場地-沃茲站前館介紹
沃茲站前館坐落於台中公園正對面,緊鄰台中一中,台中火車站、秀泰廣場…等交通方便,周邊環境熱鬧,停車方便
絕佳的地理位置,為抓周活動大大加分,讓所有參與者都能輕鬆前來,共度美好時光
公車站
- 步行 2 分鐘可抵達公車站|臺中公園(雙十路)
- 步行 4 分鐘可抵達公車站|精武雙十路口
- 步行 5 分鐘可抵達公車站|臺灣體大游泳池
附近停車場資訊
- 步行 1 分鐘可抵達 一中停車場
- 步行 1 分鐘可抵達 精武廣場停車場
- 步行 6 分鐘可抵達 干城停車場
- 步行 6 分鐘可抵達 CITY PARKING 停車場 干城站
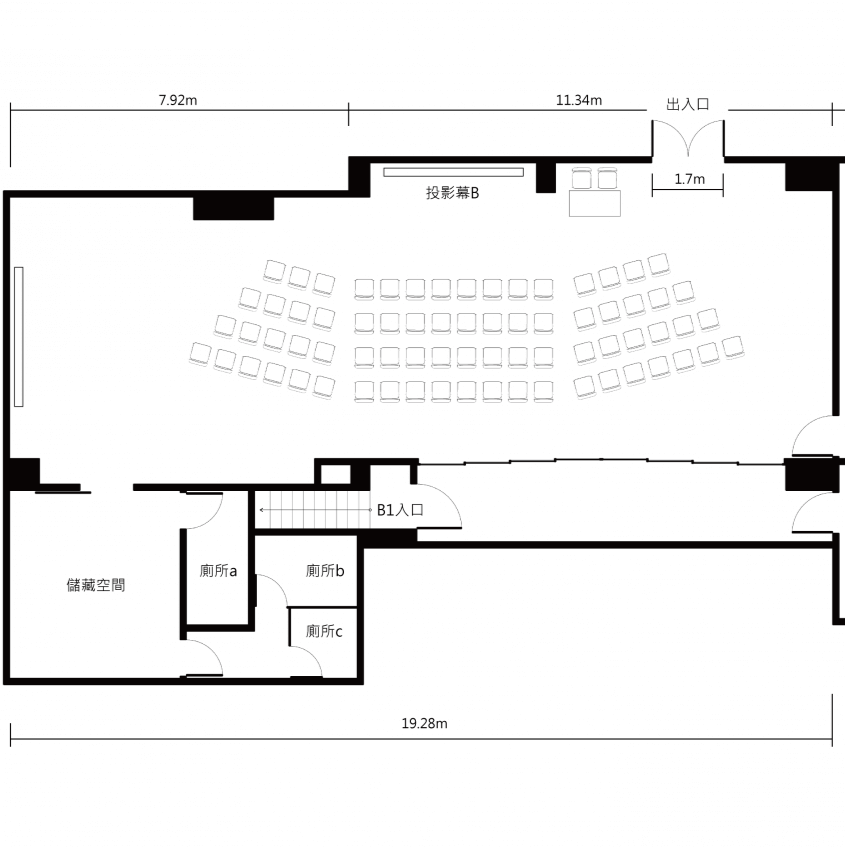
台中抓周場地-沃茲站前館空間平面圖
- 抓周場地空間 54 坪、靜態階梯 20 坪
- 抓周場地長 34.5 公尺,寬 5 公尺
3分鐘完成台中抓周場地租借
現在立即行動,搶先預訂您期望的抓周場地租借時間:
- 註冊/登入會員帳號
- 預訂想要租借的空間
- 填寫訂單資訊和活動人數
- 加入官方LINE@,並傳訊訂單編號
- 確認訂單並且匯完款後,收到 mail 就預約成功了
台中抓周常見問題 FAQ
以下整理了新手爸媽在規劃台中抓周時最常詢問的問題:
台中哪裡可以辦抓周?
台中有多種抓周場地選擇,包括專業派對空間、飯店宴會廳、親子餐廳和共享空間等。
沃茲新創空間在台中提供勤美館(北區)、忠明館(南區)、站前館(東區)三種場館,涵蓋 2-100 人的各種規模需求,設備齊全且交通便利。
抓周一定要生日當天嗎?
傳統上建議在寶寶滿周歲當天舉行,但現代家庭多會選擇周歲前後的週末,方便更多親友參加。
一般來說,提前或延後 1-2 週都是可以接受的,重要的是全家人能一起參與這個特別的時刻。
抓周大概多少錢?
台中辦一場抓周的費用因規模而異。
- 小型溫馨場(自備道具 + 場地租借 2 小時)約 $1,300-3,000
- 中型派對(含攝影、簡單佈置)約 $5,000-10,000
- 大型派對(含外燴、專業攝影、精緻佈置)則可能超過 $15,000
沃茲新創空間場地平日時租 $650 起,是台中高 CP 值的選擇。
台中有免費抓周的地方嗎?
部分台中的親子餐廳或母嬰品牌門市會不定期舉辦免費抓周活動,通常需要提前報名且名額有限。
如果想要更有彈性的時間安排和私密空間,選擇時租場地是更好的替代方案。
沃茲新創空間平日 2 小時僅 $1,300 起,比起在外面餐廳低消包場往往更划算。
抓周需要準備什麼道具?
一般建議準備 12 樣抓周道具,常見的包括:書本(學識)、印章(權力)、算盤(理財)、聽診器(醫業)、尺(建築)、麥克風(藝術)、滑鼠(科技)、金元寶(富貴)等。
道具可以自行準備或向抓周服務商租借,部分場地也提供道具加購服務。



你必須登入才能發表留言。